7.5 Zimmer-Einfamilienhaus
Vermietung
7.5 Zimmer-Einfamilienhaus
Mietobjekt arrow-left Created with Sketch. Einfamilienhaus
St. Mamertenweg 18, 9495 Triesen
Cheminée/Ofen
WM/TU
Garten
Kinderfreundlich
Fakten
Objektart Einfamilienhaus
Zimmer 7.5
Wohnfläche 180 m²
Baujahr 2023 komplett renoviert
Badezimmer Bad/Du/WC und Du/WC
Heizung Öl
Terrasse/Balkon 2 Balkone und Garten mit Pergola
Detailinformationen
Angebot
Nettomiete exkl. NK CHF 2'800.00
Verfügbarkeit April 2026
Downloads
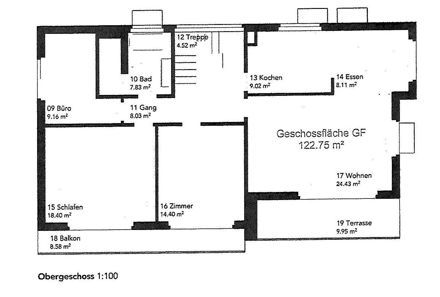
Grundriss EG
Grundriss OG
Lage
Ihr neues Heim

Renoviertes Einfamilienhaus an ruhiger Lage

Am Ende einer Sackgasse in Triesen gelegen vermieten wir ab April 2026 oder nach Vereinbarung dieses grosszügige 7.5 Zimmer-Einfamilienhaus.

Durch die erhöhte Lage bietet sich ein fantastischer Ausblick auf das Tal und die umliegende Bergwelt.

Das Haus

Das im Jahr 2023 renovierte Einfamilienhaus verfügt im Erdgeschoss über drei Schlafzimmer sowie ein Duschbad. Die Zimmer sind mit Parkett verlegt.

Eine grosszügige Einzelgarage bietet nicht nur Platz für ein Auto, sondern auch für Fahrräder, Motorräder oder weiteren Stauraum. Zudem befinden sich hier ein Keller sowie der Hauswirtschaftsraum.

Das Obergeschoss verfügt über drei weitere Schlafzimmer sowie ein Bad mit Badewanne, Dusche und Toilette.

Die offene Küche mit angrenzendem Essbereich bietet viel Stauraum und eine ruhige Aussicht. Der Wohn-/Essbereich ist offen gestaltet, jedoch optisch voneinander abgetrennt. Ein Schwedenofen sorgt für eine besonders gemütliche Atmosphäre.

Im grossen Garten lädt eine Pergola zum Verweilen und Entspannen ein.

 

Bei Fragen stehen wir gerne zur Verfügung.

Anfrage­formular
Bei Interesse oder Fragen dürfen Sie uns gerne kontaktieren.
Vielen Dank für Ihre Anfrage!