Gewerbegebäude
Vermietung
Gewerbegebäude
Mietobjekt arrow-left Created with Sketch. Büro/Gewerbe
Industriestrasse 40, 9487 Bendern
Aufzug
Fakten
Objektart Büro/Gewerbe
Büro-/Gewerbefläche 3'473 m²
Baujahr 1999
Heizung Wärmepumpe + Photovoltaik
Terrasse/Balkon Dachterrasse
Detailinformationen
Angebot
Mietpreis auf Anfrage
Verfügbarkeit Februar 2026
Downloads
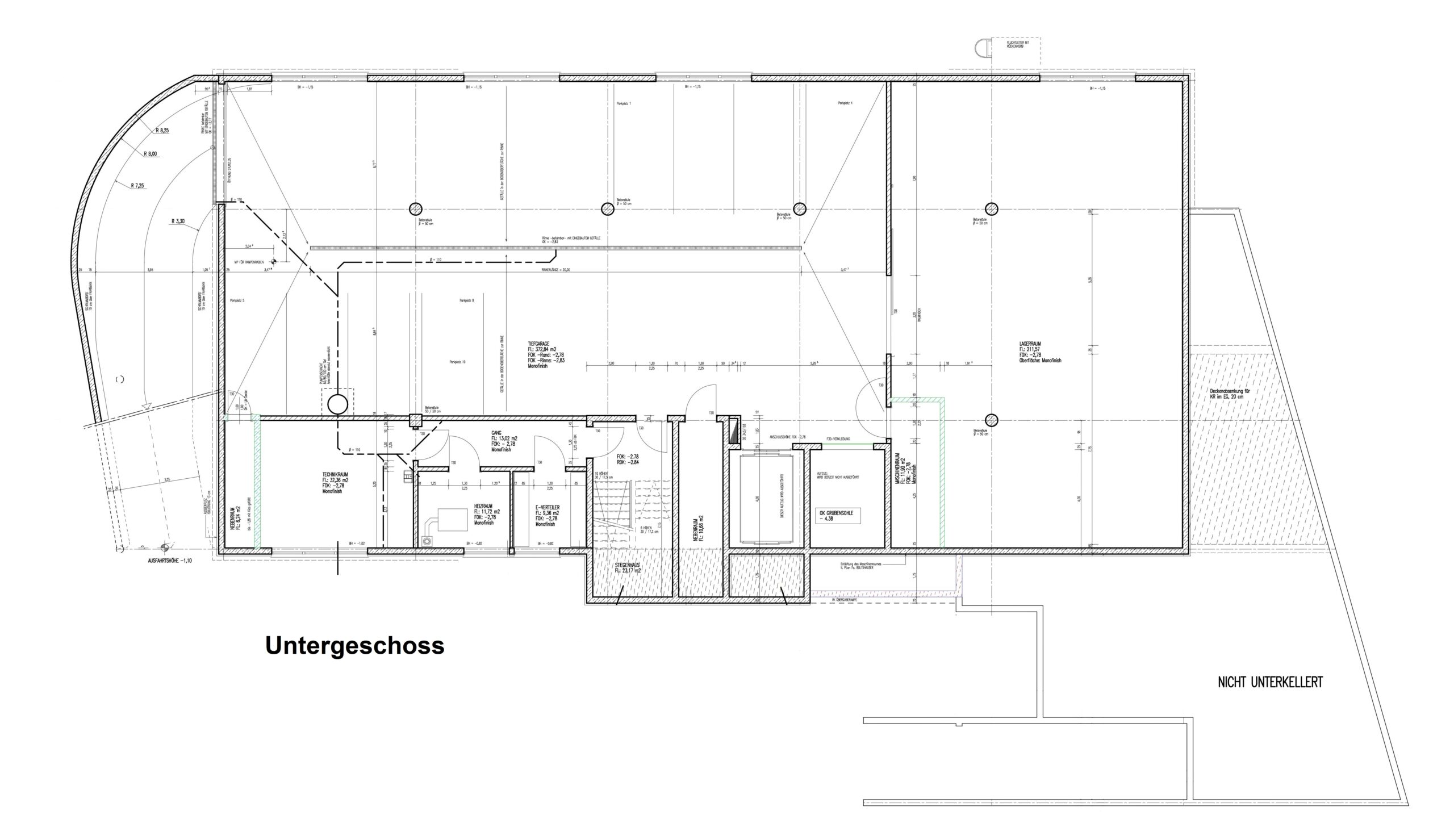
Grundriss Untergeschoss
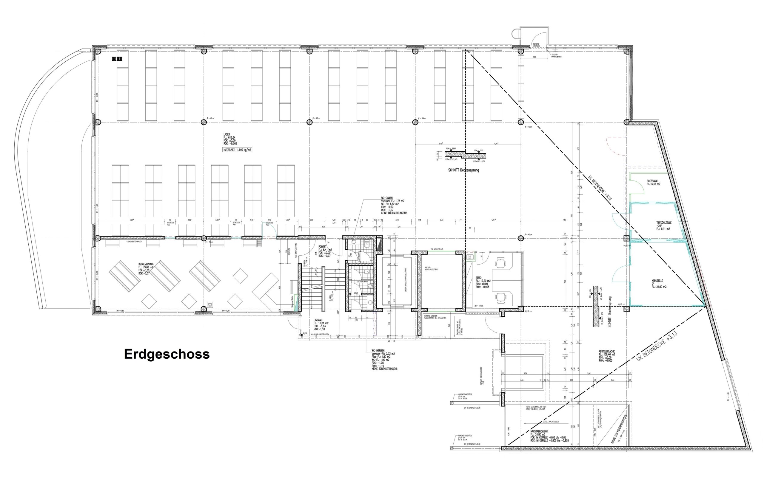
Grundriss Erdgeschoss
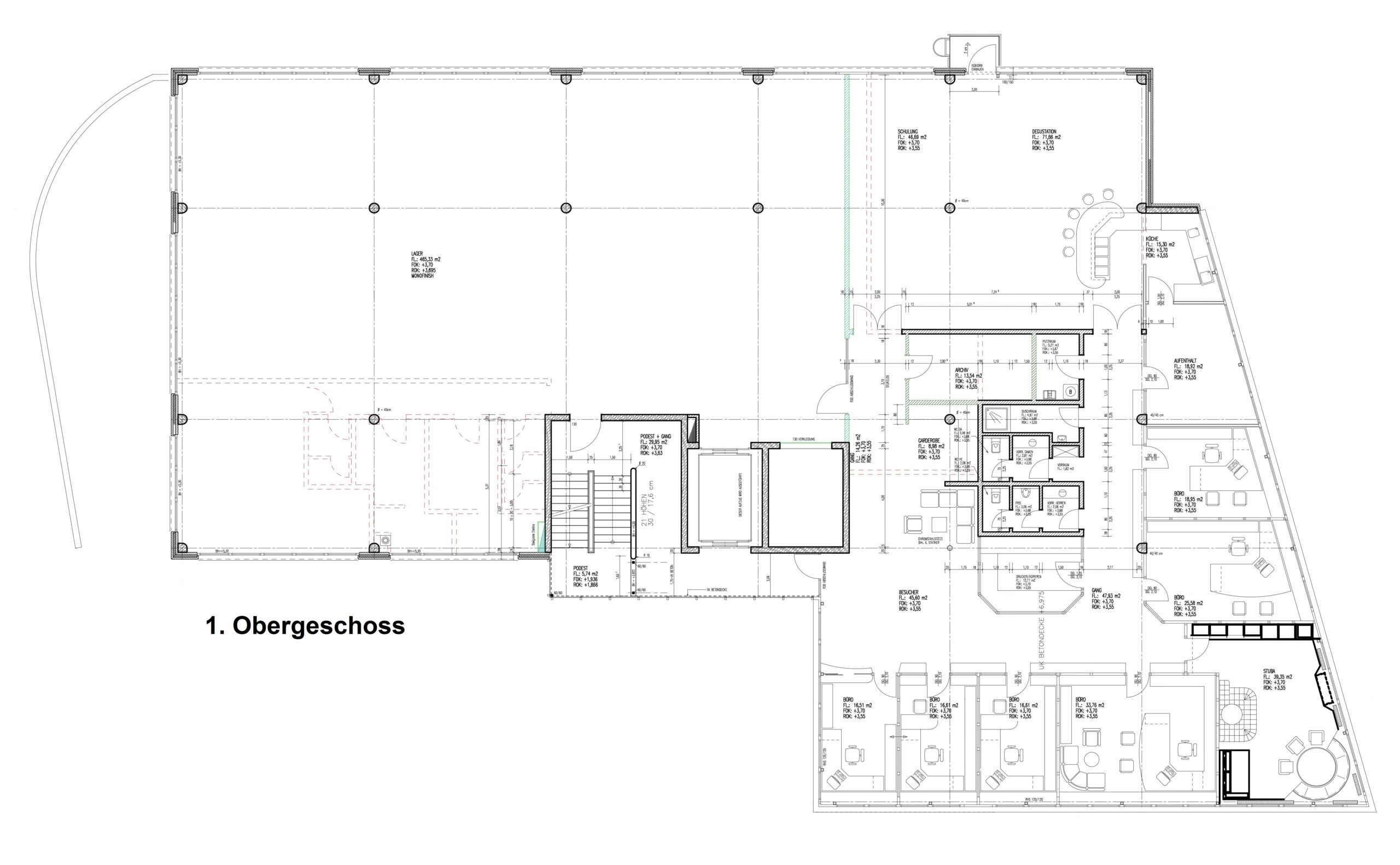
Grundriss 1. Obergeschoss
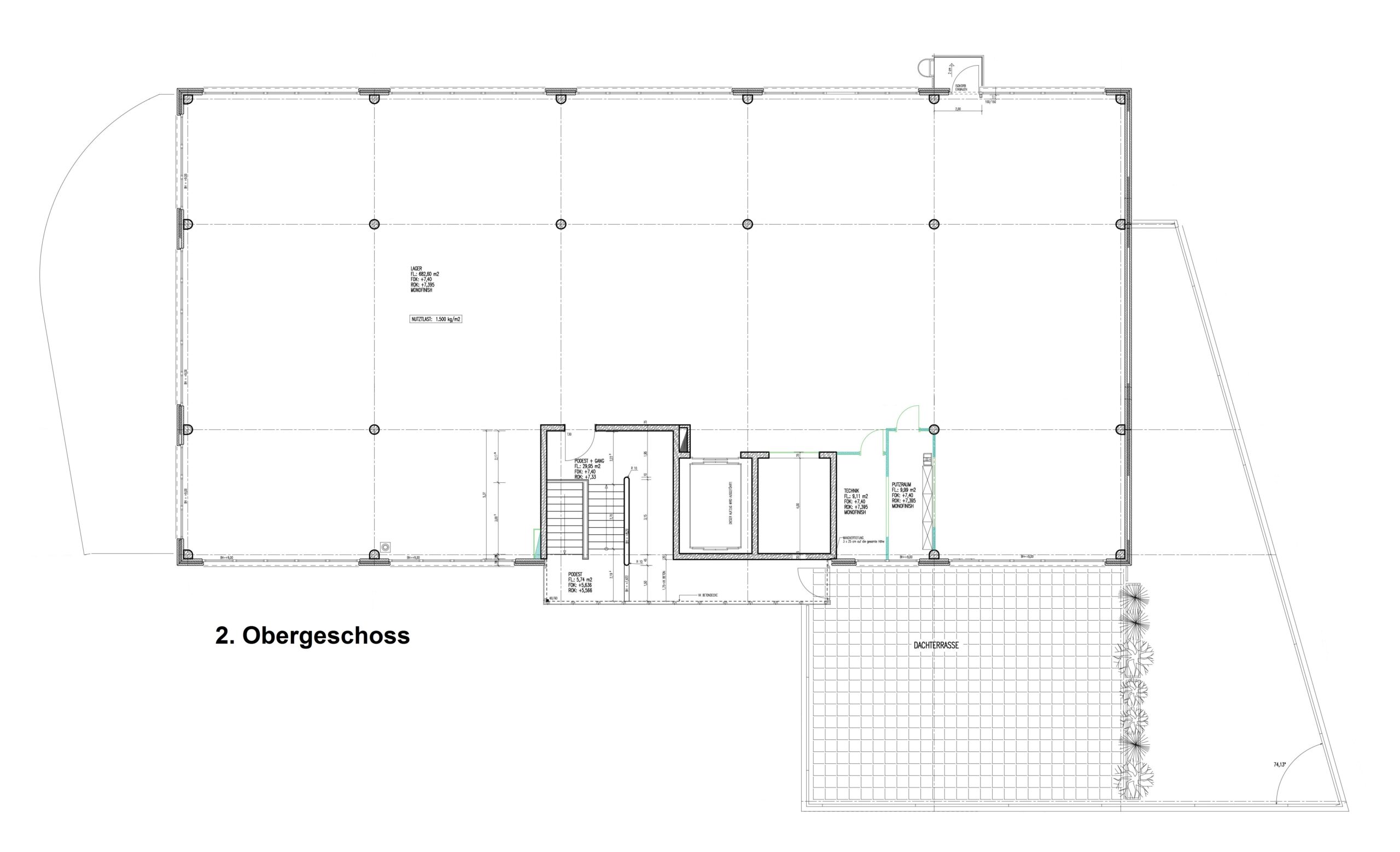
Grundriss 2. Obergeschoss
Lage
Ihr neues Büro

Gewerbegebäude

Das im Jahr 1999 erstellte Gewerbegebäude befindet sich in der Industrie- und Gewerbezone (IG) in Bendern und weist einen guten Ausbaustandard mit kompletter Infrastruktur, Büros, Besprechungszimmer, Aufenthalts-/Schulungsraum, Küche, grossen Lagerflächen und Kühlräumen auf.

Das viergeschossige Gebäude befindet sich innen wie aussen in einem gepflegten Zustand. Im Jahr 2017 wurde das komplette Dach mit einer Photovoltaikanlage ausgestattet.

Es besteht eine gute Parksituation mit Parkplätzen direkt vor dem Eingang sowie eine kundenfreundliche Zufahrt. Zudem befinden sich an der Westseite des Gebäudes weitere Aussenparkplätze. Im Untergeschoss steht eine Tiefgarage mit zusätzlichen Parkplätzen zur Verfügung.

Ein Warenlift ist vorhanden. Eine praktische Rampe steht für LKW’s bereit. Die einzelnen Geschosse weisen unterschiedliche Raumhöhen auf, Untergeschoss ca. 2.30 m, Obergeschosse zwischen ca. 3 m bis 4 m. Das 2. Obergeschoss verfügt zusätzlich über eine grosszügige Dachterrasse mit rund 275 m².

 

Haben wir Ihr Interesse geweckt? Melden Sie sich bei uns!

Anfrage­formular
Bei Interesse oder Fragen dürfen Sie uns gerne kontaktieren.
Vielen Dank für Ihre Anfrage!